5 værelses række hus i familie venligst område






No English text was provided by the landlord, but we have made this automated translation for you:
Damvej.
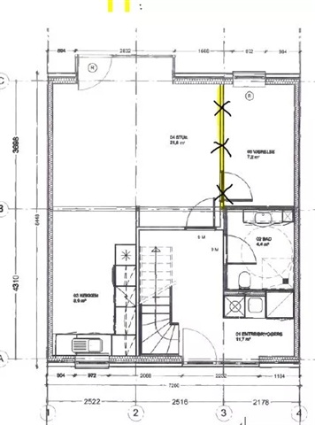
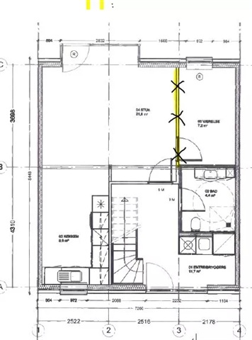
Townhouse 128m2 is located in Fredericia close to shopping and sports facilities, 10 minutes to the city center and not far from the station. Madsbyparken is also within walking distance of the apartment.The townhouse has 4 bright rooms and 1 toilet, all located on the 1st floor. Kitchen and living room in one, 1 bathroom/m shower, and terrace on the ground floor.
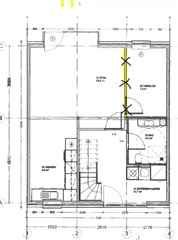
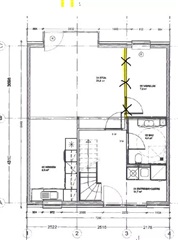
The townhouse is bright and friendly, you enter the entrance hall which has a utility room with washing machine and dryer and there are stairs up to the 1st floor. From the entrance hall there is also an entrance to the toilet and bathroom with shower. From here you enter the kitchen and the living room which open into one. The kitchen has bright elements with built-in oven, hob and fridge and freezer, and is well decorated in conjunction with the living room which has wooden floors and large bright windows with access to the terrace.
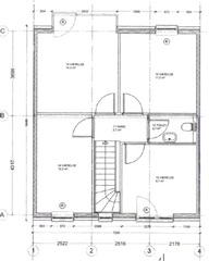
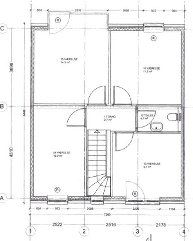
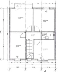
On the 1st floor are the house's 4 rooms with plenty of space, as well as a toilet.
Outdoors there is a lovely playground and there are green areas to relax in.
There is an associated storage room.
There is free parking and free guest parking.
Installment of the deposit can be negotiated.
We now have the opportunity and can offer financing of the deposit at a very advantageous interest rate of 3.3%
In collaboration with Keyhole we have an agreement that means you do not have to go out and find your deposit before you move in with us.
You choose whether you want to pay your deposit back in a shorter or longer period.
If you want to read the description in its original language that is also possible. Read original description
Energy declaration:
- Balcony/terrasse
- Rent paid in advance: 9,500
- Deposit: 28,500
- Payment on account: Contact owner
- Vacant: 1. November 2025
- Placed:
- Pets allowed
- Case number: 1868206