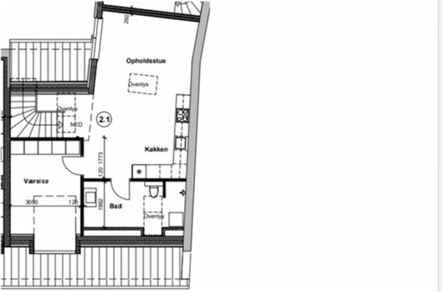
2 room apartment on 76 m2






Ringstedgade, , floor: 1..
Rooms: 2Area m2: 76
Rent. 7,950 kr.
Zip code: 4700
City: Næstved
- Rent paid in advance: 7,950
- Deposit: 23,850
- Payment on account: 1,200
- Vacant: 1. November 2025
- Placed:
- Pets not allowed
- Case number: 1868133