Stort og moderne rækkehus med tagterrasse






No English text was provided by the landlord, but we have made this automated translation for you:
Højnæsvej.
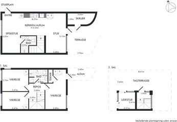
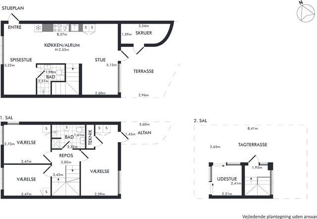
This beautiful, modern three-story townhouse offers a large open kitchen-dining room and living room on the ground floor with access to a beautiful terrace. The modern kitchen is equipped with a fridge-freezer, ceramic hob, extractor hood, built-in oven and dishwasher. The first floor offers three good rooms and access to a balcony. Both on the ground floor and on the first floor there is a modern bathroom, of which the first floor has a washing column. On the top floor there is a large sunny roof terrace.
The townhouse is centrally located in Rødovre, with Rødovre Center only 500 meters away, and there is therefore a short distance to shopping, restaurants and shopping opportunities. The townhouse is only 7.4 km from Copenhagen, and there is therefore ample opportunity to visit the big city.
From the townhouses there is only 500 meters to public transport, and there are several nurseries and kindergartens located within a few kilometers.
If you want to read the description in its original language that is also possible. Read original description
- Rent paid in advance: 19,300
- Deposit: 57,900
- Payment on account: 1,300
- Vacant: 1. January 2026
- Placed:
- Might be allowed - ask landlord
- Case number: 1866698