91 m2 lejlighed på Mosegårdsvej






No English text was provided by the landlord, but we have made this automated translation for you:
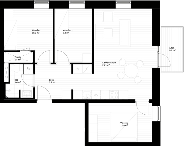
Mosegårdsvej, , floor: 2. sal, 2..
Welcome to Mosegårdsvej, 2nd floor, apartment 2 – a bright and spacious apartment of 91 m², where the floor plan has been thought out down to the smallest detail. Here you will get a home that combines aesthetics, functionality and views – a home that is equally inviting and practical. The home where everything comes into play The apartment opens up with a large kitchen-dining room of 26 m² – the natural gathering point that invites both everyday tranquility and dinners with guests. The large windows draw in the light and create a light and airy atmosphere, while the exit to the private balcony provides extra space to enjoy the sun and the view. The floor plan offers three good rooms: a bedroom of 10.9 m² and two rooms of 10 m² and 8.8 m² respectively – all with flexible interior design options. The entrance is spacious and practical, with access to both a modern bathroom and a separate technical room, so everyday functions are elegantly integrated. Location close to both city and nature Mosegårdsvej in Erritsø gives you the best of both worlds: a short distance to shopping, school and transport, while forests, beaches and green areas are just around the corner. Here you get a location where everyday life, nature and city life go hand in hand. A ready-to-move-in apartment with light, air and a floor plan that works – ready to enjoy from day one.If you want to read the description in its original language that is also possible. Read original description
- Share-friendly
- Balcony/terrasse
- Parking
- Floor plan
- Rent paid in advance: 0
- Deposit: 29,985
- Payment on account: Contact owner
- Vacant: 15. November 2025
- Placed:
- Pets allowed
- Case number: 1866560