42 m2 apartment. Pets are allowed

Rent 14,250 DKK
Rental Period Unlimited
Type Apartment
Location København Ø
Area 42
Rooms 2 rooms

Sionsgade, , floor: 5. 3..

This 42-square-meter, two-room apartment is situated on the fifth floor of the newly constructed building at Sionsgade 2, apartment 3.D. Offering a contemporary design with a focus on high-quality finishes and efficient use of space, it is ideally suited for single occupants or couples seeking a central location in Copenhagen where everything is conveniently nearby.

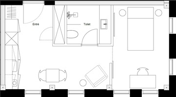
The layout includes an entrance hall featuring a built-in wardrobe niche and access to the bathroom. The open-plan kitchen and living area is spacious and bright, accommodating both dining and seating arrangements. The kitchen, supplied by Invita, comes equipped with integrated appliances such as a refrigerator, oven, and dishwasher. Adjacent to this is a separate bedroom overlooking the courtyard, designed with enough room for a double bed and wardrobe. The bathroom is fitted with underfloor heating, a separate shower enclosure, and a washing machine. The overall floor plan maximizes functionality within a relatively compact footprint by combining the kitchen and living space into one open, inviting area that works well for both everyday living and entertaining guests.

Inside, the apartment exudes a modern yet industrial atmosphere with exposed concrete ceilings and visible laminated timber columns that add distinctive character. Oak parquet flooring provides warmth and a natural elegance, while large windows flood the space with natural light.

Residents benefit from shared amenities including a communal house featuring restroom facilities, a kitchen, and a bar—perfect for social gatherings and events. There is also a shared courtyard garden, designed as a green oasis nestled between the building and the community house. Additional storage needs are met through a private basement storage room. The building itself emphasizes sustainability and energy efficiency, boasting rooftop solar panels and an innovative timber structure constructed using Cross-Laminated Timber (CLT).

The location offers exceptional convenience, situated only 100 meters from Poul Henningsens Plads Metro Station and surrounded by cafés, grocery stores, and green spaces such as Fælledparken. Copenhagen’s Kongens Nytorv is reachable within ten minutes, and both Nordhavn and Svanemøllen neighborhoods are within a short distance.

  • Rent paid in advance: 14,250
  • Deposit: 42,750
  • Payment on account: Contact owner
  • Vacant: 1. March 2026
  • Placed:
  • Pets not allowed
  • Case number: 1864490

Users who have seen this property also saw these: