42 m2 apartment on Sionsgade

Rent 13,995 DKK
Rental Period Unlimited
Type Apartment
Location København Ø
Area 42
Rooms 2 rooms

Sionsgade, , floor: 4. 3..

This two-room apartment spans 42 square meters and is situated on the fourth floor of the newly constructed building at Sionsgade 2, 3.D. Designed with modern sensibilities and efficient use of space, the apartment offers a high standard of quality and tasteful material selections. It is ideally suited for individuals or couples who seek a central location in Copenhagen, providing convenient access to a variety of urban amenities.

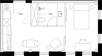
The layout features an entrance hall equipped with a built-in wardrobe niche that leads directly to the bathroom. The kitchen and living area are combined into a bright, expansive open space that can comfortably accommodate both a dining table and a seating area. The kitchen, crafted by Invita, comes complete with integrated appliances including a refrigerator, oven, and dishwasher. Adjoining this space is a separate bedroom facing the courtyard, big enough for a double bed and wardrobe. The bathroom is fitted with underfloor heating, a separate shower stall, and a washing machine. The design maximizes functionality within the limited square footage by merging kitchen and living spaces, creating a welcoming environment for everyday life and social gatherings.

Inside, the apartment boasts a modern, industrial feel with exposed concrete ceilings and visible laminated timber columns that add distinctive character. The oak parquet flooring introduces warmth and natural elegance, while large windows allow abundant natural light to flood the interiors.

Residents benefit from several communal facilities, including a shared clubhouse equipped with a kitchen, bar, and restrooms—perfect for hosting parties and events. Adjacent to the clubhouse is a communal courtyard, fashioned as a green oasis nestled between the building and the common house. Additionally, a private storage unit is available in the basement for extra belongings.

The property emphasizes sustainability and energy efficiency, featuring rooftop solar panels and a pioneering Cross-Laminated Timber (CLT) construction framework.

Conveniently located only 100 meters from Poul Henningsens Plads Metro Station, the area is surrounded by cafés, grocery stores, and green spaces such as Fælledparken. From here, reaching Kongens Nytorv takes less than ten minutes, with both Nordhavn and Svanemøllen easily accessible within a short distance.

  • Rent paid in advance: 13,995
  • Deposit: 41,985
  • Payment on account: Contact owner
  • Vacant: 1. March 2026
  • Placed:
  • Pets not allowed
  • Case number: 1864484

Users who have seen this property also saw these: