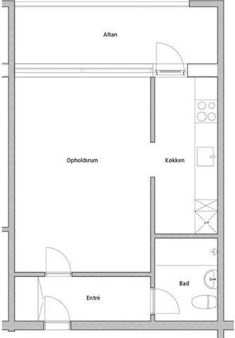
43 m2 lejlighed med altan/terrasse

Rent 4,700 DKK
Rental Period Unlimited
Type Apartment
Location Horsens
Area 43
Rooms 1 rooms

Lichtenbergsgade, , floor: st., lejl. 4..

This one-bedroom apartment spans 43 square meters and is situated just a five-minute walk from the lively city center of Horsens, close to the charming pedestrian street. It enjoys a convenient proximity to the train station as well as VIA Campus. The current layout consists of a combined living room and bedroom, a bathroom equipped with a shower, a separate kitchen with access to a balcony, and an entrance hall featuring a wardrobe.

Tenants benefit from several additional facilities, including access to a basement laundry room fitted with Miele washing machines and dryers, as well as the possibility to use the building’s bicycle storage. Parking spaces can be rented for 300 DKK per month, though a waiting list may apply. Furthermore, there is an option to rent a separate room with an adjoining bathroom for overnight guests. The property also includes an elevator and is secured with a state-of-the-art locking system. Prospective renters can apply for permission to have a small dog or cat, but please note that all pet approvals require the landlord’s consent. Applications must provide specific details about the pet’s breed, size, and age, and the landlord reserves the right to deny permission based on this information.

  • Rent paid in advance: 4,700
  • Deposit: 14,100
  • Payment on account: Contact owner
  • Vacant: Immediately
  • Placed:
  • Pets not allowed
  • Case number: 1859574

Users who have seen this property also saw these: