Luksuslejlighed i spændende ejendom






No English text was provided by the landlord, but we have made this automated translation for you:
- Digital showcase is available. Landlord offers to show this property to you using video conference tools.
Grønnegade, , floor: 2, th..
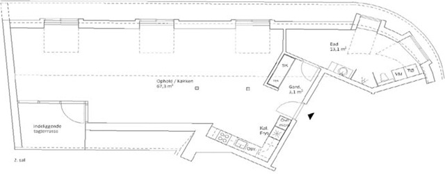
Exciting New York inspired large 1-bedroom apartment with built-in zinc terrace, facing south/east.The rental includes, among other things, a dishwasher, microwave, washing machine and dryer.
The apartment is located in the heart of Odense, where the pedestrian zone with all its shops, cafes and restaurants is a stone's throw from the property.
It is also a short distance from Odense's many green areas and the Odense River.
In addition to the rent, water and heating are paid to the landlord.
This amount is included under on-account consumption.
Electricity and antenna are charged directly from the relevant utility companies.
There is access to the following:
- Shared courtyard
- Bicycle shed
- Possibility of parking for a fee
- Access to elevator
If you want to read the description in its original language that is also possible. Read original description
- Balcony/terrasse
- Rent paid in advance: 8,950
- Deposit: 26,850
- Payment on account: 1,850
- Vacant: Immediately
- Placed:
- Pets not allowed
- Case number: 1855061