A room of 13 m2






.
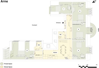
This beautiful penthouse duplex is located on 5th floor with elevator directly into the apartment. The apartment is completely renovated with 6 bedrooms, 2 modern bathrooms, large modern dining kitchen and TV-lounge with direct access to 12 m2 private rooftop terrace.High-quality bed with bedspread, duvet and pillows.
Bedside table with reading lamp.
Desk with desk chair and desk lamp.
Drawer and hanging space.
Storage boxes underneath the bed.
Curtains, mirror, laundry basket, trash can, rugs and decoration (not all on photos).
- Balcony/terrasse
- Furnished
- Floor plan
- Rent paid in advance: Contact owner
- Deposit: Contact owner
- Payment on account: Contact owner
- Vacant: 1. November 2025
- Placed:
- Might be allowed - ask landlord
- Case number: 1852003