Housing is no longer available

Hedelunden, 47 m2, 2 rooms, 9,450 kr.

Rent 9,450 DKK
Rental Period Unlimited
Type Apartment
Location Greve
Area 47
Rooms 2 rooms

Hedelunden, , floor: D..

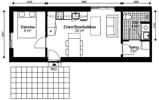
This charming apartment located in Greve offers a modern and practical living space situated in a peaceful and desirable neighborhood. The open-plan living room and kitchen area provide a bright and spacious environment, ideal for both relaxing and socializing. The kitchen comes fully equipped with essential appliances, including a dishwasher, refrigerator, oven, and stovetop, ensuring everyday life is convenient and straightforward. Within the bathroom, you’ll find a combined washer and dryer, adding an extra layer of comfort and functionality to the home. Pets are not permitted in this property.

Additionally, the apartment features a pleasant terrace, perfect for enjoying bright summer evenings or unwinding with a good book, effectively extending the living area to the outdoors. Prospective tenants will undergo a credit check coordinated through their CPR number when applying to rent the property. Renting is subject to not being listed in the RKI register. Please note that the provided photos and floor plans are not representations of this particular unit.

  • Balcony/terrasse
  • Parking
  • Rent paid in advance: 9,450
  • Deposit: 28,350
  • Payment on account: Contact owner
  • Vacant: 1. August 2026
  • Placed:
  • Pets not allowed
  • Case number: 1851720