Room with balcony

Rent 12,666 DKK
Rental Period Unlimited
Type Room
Location København K
Area 20
Rooms 1 rooms

.

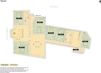
Constructed in 1900, the building houses an apartment featuring a total of six rooms, consisting of two double bedrooms and four single bedrooms. At the heart of the apartment, a spacious living room and dining area are combined, creating an ideal space for social gatherings such as movie evenings, shared meals, game nights, or quiet reading sessions. Positioned at either end of the apartment are two large bathrooms, providing convenient access from all parts of the home. The hallway opens up to a kitchen designed with ample space, allowing several individuals to prepare meals at the same time.

  • Rent paid in advance: Contact owner
  • Deposit: Contact owner
  • Payment on account: Contact owner
  • Vacant: 1. March 2026
  • Placed:
  • Might be allowed - ask landlord
  • Case number: 1848318

Users who have seen this property also saw these: