4 værelses lejlighed inkl. parkering

Rent 12,956 DKK
Rental Period Unlimited
Type Apartment
Location Odense SV
Area 113
Rooms 4 rooms

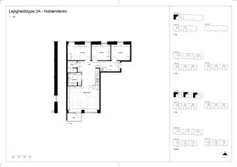
Hollænderen, , floor: 1. 4..

Located on the first floor, this thoughtfully designed residence offers an optimal balance of natural light and practical living. The layout is straightforward, providing ample space that accommodates both communal living and personal privacy, making it suitable for families, couples, or anyone seeking additional rooms. The kitchen and living area serve as the home's central hub, featuring enough room to comfortably fit a dining table along with a seating area. An extra window in the living room brings in pleasant west-facing sunlight, adding a warm and inviting atmosphere, particularly during the afternoon and evening hours. From this space, you can step out onto the balcony, which effectively extends the living area outdoors and enhances the connection to open-air living.

The apartment includes three well-sized bedrooms, all arranged around a quiet hallway that naturally separates the living spaces from the sleeping quarters. The bathroom is designed for practicality, equipped with a separate shower stall and a stacked washer-dryer unit. Additionally, there is a convenient storage room that offers valuable extra space for everyday needs. Thanks to its position on the first floor, the home is easily accessible while maintaining privacy. It is a well-planned, bright apartment designed to function efficiently in daily life.

Residents also benefit from complimentary parking spaces available to all tenants at Dalum Papirfabrik. Please note that the floor plan is indicative and subject to minor modifications, and the photos shown do not depict this specific unit but rather a selection of images from furnished model apartments.

  • Share-friendly
  • Balcony/terrasse
  • Parking
  • Floor plan
  • Rent paid in advance: 0
  • Deposit: 38,868
  • Payment on account: Contact owner
  • Vacant: 1. April 2026
  • Placed:
  • Pets allowed
  • Case number: 1844665

Users who have seen this property also saw these: