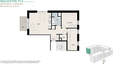
85 m2 apartment in Roskilde

Rent 13,450 DKK
Rental Period Unlimited
Type Apartment
Location Roskilde
Area 85
Rooms 3 rooms

Ved Ringen, , floor: 2. th..

Located in Roskilde, this residential complex was constructed in 2019 and features a contemporary architectural style. The building's street-facing facades are clad in dark red brick, while lighter tones are used on the courtyard side. Each apartment includes balconies made from galvanized steel, complementing the building's design with a light and airy appearance. Spanning five floors, the property contains a total of 121 units with layouts ranging from two to four rooms.

Residents benefit from several shared amenities, including a large rooftop terrace, a communal room, and a green courtyard equipped with a playground, barbecue area, small garden beds, and bicycle parking. Additionally, there is an underground parking facility available for both cars and bicycles. The apartments themselves are fitted with modern features such as oak parquet flooring in the entrance, living room, bedrooms, and kitchen. The kitchens are supplied by Tvis Køkkener, ensuring Danish quality combined with sleek design.

The location provides excellent proximity to Roskilde's city center as well as nearby recreational areas, granting easy access to urban conveniences and natural surroundings. It is important to note that smoking is prohibited inside the rental units, and keeping pets is not allowed. Prospective tenants will undergo a credit check using their CPR number as part of the application process. Applicants listed in the RKI registry are ineligible to rent. Please be aware that the photos shown are not of the specific apartment available.

  • Rent paid in advance: 12,600
  • Deposit: 37,800
  • Payment on account: Contact owner
  • Vacant: 1. June 2026
  • Placed:
  • Pets not allowed
  • Case number: 1838634