Housing is no longer available

Apartment with balcony

Rent 12,350 DKK
Rental Period Unlimited
Type Apartment
Location Roskilde
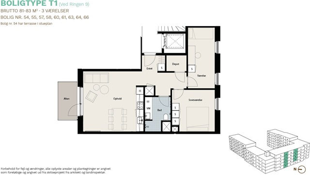
Area 83
Rooms 3 rooms

Ved Ringen, , floor: st. th..

The home at Ved Ringen in Roskilde is a modern and functional home with a strong emphasis on both aesthetics and comfort. The property, which spans five floors, houses 121 homes, divided into 2-, 3- and 4-bedroom apartments, providing a wide range of options for different housing needs.One of the beautiful details that adorn the facade of the building are the stylish galvanised steel balconies. The balconies are both functional and beautifully designed, creating a harmonious balance with the rest of the building's architecture, adding a light and modern look to the property.Inside, the apartments are equipped with all modern conveniences. There are oak parquet floors in the entrance hall, living room, bedrooms and kitchen, giving a warm and welcoming feel throughout the home. The kitchens are supplied by Tvis Køkkener, ensuring a high standard of Danish quality and stylish design. In addition, the homes are equipped with high-quality white goods that contribute to both functionality and comfort in everyday life.The homes at Ved Ringe combine modern luxury with practical functionality, and with the attractive location in Roskilde, they are an ideal choice for those looking for a stylish and comfortable home.When requesting to rent the property, a credit check will be carried out on the prospective tenant using their CPR number. It is not permitted to be registered in RKI if you want to rent a property.Please note! The pictures are not from the specific property.

  • Share-friendly
  • Balcony/terrasse
  • Parking
  • Rent paid in advance: 12,350
  • Deposit: 37,050
  • Payment on account: Contact owner
  • Vacant: 1. February 2026
  • Placed:
  • Pets not allowed
  • Case number: 1836955

Users who have seen this property also saw these: