Housing is no longer available

Shareable apartment seeks tenant

Rent 13,250 DKK
Rental Period Unlimited
Type Apartment
Location Holbæk
Area 105
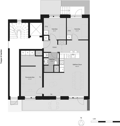
Rooms 4 rooms

Fyrren, , floor: st. th..

This charming four-room apartment located at Fyrren in Holbæk offers a contemporary and comfortable living environment, thoughtfully designed to provide a bright and welcoming atmosphere. The residence features a spacious master bedroom with a walk-in closet, ample for clothing and storage needs. Additionally, there are two well-sized rooms that can be adapted for use as children’s bedrooms, a home office, or a hobby space, depending on personal requirements.

At the core of the apartment lies an open-plan kitchen and living area that serves as a natural gathering place in daily life. The kitchen is sleek and contemporary, fully equipped with modern appliances, ensuring ease and efficiency in meal preparation and everyday routines. From the dining space, access leads directly to a large south-facing balcony or terrace, perfect for soaking up sunlight throughout the day, enjoying outdoor meals, or simply unwinding in a tranquil setting.

The building includes a cozy courtyard featuring shared common areas and a playground designed for young children. An access ramp for both entering and exiting the parking garage is available on-site, while elevators operating in every stairwell connect down to the basement level. The basement also accommodates designated bicycle parking areas and provides every apartment with a locked storage room within a heated cellar. Each apartment is fitted with a video door phone system for added security.

One dog or one cat may be kept with the landlord’s written consent. The neighborhood surrounding Fyrren in Holbæk is well-regarded for its secure and green environment, close to nature, walking paths, playgrounds, and communal green spaces. Amenities such as shops, schools, daycare facilities, and public transportation are all conveniently nearby. The charming town center of Holbæk and the harbor area are also within easy reach, offering the perfect balance of peaceful surroundings and urban life.

Prospective tenants must undergo a credit check using their CPR number before tenancy approval. Being listed in RKI is not permitted for renting a property through Newsec. Please note that the photos provided do not depict this specific apartment.

  • Share-friendly
  • Balcony/terrasse
  • Lift
  • Rent paid in advance: 13,250
  • Deposit: 39,750
  • Payment on account: Contact owner
  • Vacant: 1. January 2026
  • Placed:
  • Pets allowed
  • Case number: 1829454

Users who have seen this property also saw these: