Robert Jacobsens Vej, 108 m2, 4 rooms, 17,500 kr.

Rent 17,500 DKK
Rental Period 1 year and more
Type House
Location København S
Area 108
Rooms 4 rooms

Robert Jacobsens Vej.

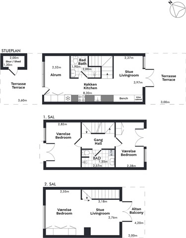
This nicely furnished townhouse is situated in a family-friendly neighborhood and spans three well-utilized and cozy floors. The ground level includes an entrance hall, a combined kitchen and dining area, a living room, as well as a bathroom. From the living room, one can access a beautifully landscaped terrace. On the upper floors, there are three bedrooms along with an additional bathroom. The master bedroom, located on the top floor, opens onto a pleasant west-facing roof terrace, offering views of the surroundings and the evening sun.

Constructed in 2016, the townhouse features a modern yet charming architectural style. Each home is distinguished by its own unique brick shade, while maintaining a cohesive overall design throughout the row. The property also includes a storage shed, and parking facilities are conveniently situated nearby. Furthermore, the residence lies close to the well-regarded Kalvebod Fælled School, scenic natural areas, and the shopping center Fields. The metro station is accessible within a walking distance of under ten minutes.

  • Balcony/terrasse
  • Rent paid in advance: Contact owner
  • Deposit: 52,500
  • Payment on account: 750
  • Vacant: 1. May 2026
  • Placed:
  • Pets allowed Efter aftale
  • Case number: 1828899

Users who have seen this property also saw these: