The date for open house is only visible with subscription - click here

3B with balcony - 200 meters from the Metro and Amagercenteret

Rent 12,500 DKK
Rental Period 1 year and more
Type Apartment
Location København S
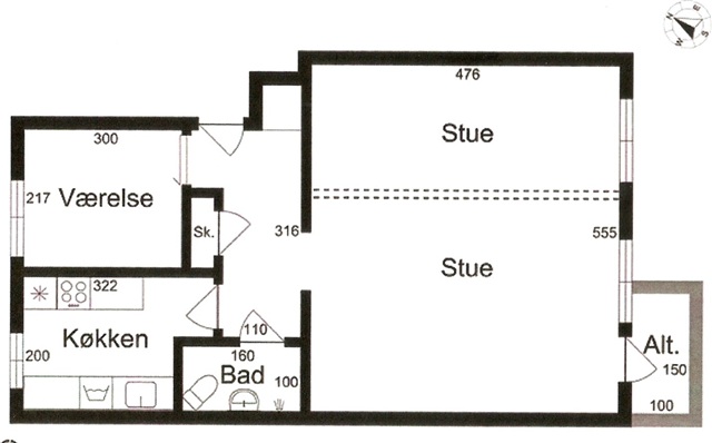
Area 60
Rooms 3 rooms

Reberbanegade, , floor: 2. th..

Here is the opportunity for a good 3B apartment in a central location. The apartment is ready to move into by 1 april 2026.

Well-run owner's association, right next to Amager Center, Metro, shopping, cafes and a short bike ride to Amager Strandpark, KUA and City.
- Courtyard with barbecue and playground
- South-west facing balcony to the courtyard, with space for furniture and good hours of sunshine.
- Good living room with access to balcony
- Distribution centers with lockers
- Nice kitchen
- Good bathroom
- There are new windows and a new radiator.
*Pga. særlige omstændigheder, sker Åbent hus-fremvisning og kontraktunderskrivelsen samme dag, - søndag d.11. januar 2026 mellem 14.00 og 14.30

  • Rent paid in advance: 12,500
  • Deposit: 37,500
  • Payment on account: 1,105
  • Vacant: 1. April 2026
  • Placed:
  • Pets not allowed
  • Case number: 1808809

Users who have seen this property also saw these: