Apartment for 9,800 kr.

Rent 9,705 DKK
Rental Period Unlimited
Type Apartment
Location Aarhus C
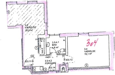
Area 91
Rooms 2 rooms

Hjarnøgade, , floor: 2. Lejl. 4..

This charming apartment features two spacious and bright rooms, each with direct access to its own balcony. The kitchenette includes a countertop with a small refrigerator, a sink cabinet, and two standalone hotplates. Although there is no built-in oven, several previous tenants have chosen to install a small oven themselves. The bathroom is well-lit and generously sized, offering storage options and a modernized shower area.

The building is equipped with an elevator and a pleasant courtyard for residents to enjoy collectively. In the basement, there is shared laundry facilities, bicycle storage, and additional storage space. Located in the sought-after Øgadekvarter neighborhood, the area provides a mix of cozy streets, cafés, and shopping opportunities, while also being close to forested and green spaces. The property is positioned in the prime spot between the vibrant Latin Quarter and the university park.

  • Balcony/terrasse
  • Lift
  • Rent paid in advance: 0
  • Deposit: 29,116
  • Payment on account: 750
  • Vacant: 1. April 2026
  • Placed:
  • Pets not allowed
  • Case number: 1802906

Users who have seen this property also saw these: