Newer bright apartment in popular area

Rent 17,250 DKK
Rental Period Unlimited
Type Apartment
Location København Ø
Area 88
Rooms 3 rooms

Bomhusvej.

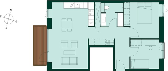
Upon entering the apartment, there is a hallway that provides access to two bedrooms on one side. Moving further inside, you will find a bathroom equipped with a toilet, a shower area, and space for a washing machine and dryer. Through a connecting corridor, the spacious kitchen and living room, arranged in an open-plan layout, become accessible. From the living area, there is a door leading out to a pleasant balcony. The building is conveniently situated close to excellent shopping options, public transportation, a school, daycare facilities, as well as parks and green spaces.

Please note that new photographs of the apartment will be made available shortly.

  • Balcony/terrasse
  • Rent paid in advance: 0
  • Deposit: 51,750
  • Payment on account: 600
  • Vacant: 1. February 2026
  • Placed:
  • Pets not allowed
  • Case number: 1802259
Notice: The location of the property on the map above may be approximate. Contact the owner for further information on the location of the property

Users who have seen this property also saw these: