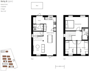
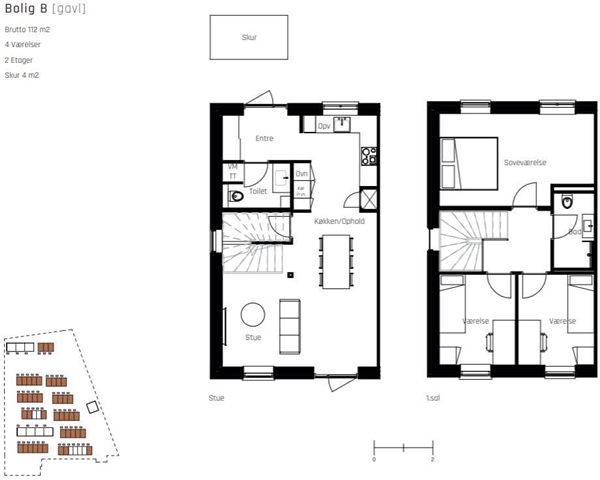
112 m2 hus/villa med altan/terrasse






No English text was provided by the landlord, but we have made this automated translation for you:
Avlsgårdsvænget, , floor: 0..
Townhouses with a superb location The area has the great advantage of being both close to the city and surrounded by beautiful nature. It is only three kilometers to the heart of Nyborg with a wealth of shopping opportunities, restaurants and cultural experiences. For nature lovers, living surrounded by both beach and forest has obvious advantages. A few hundred meters from the front door, the beautiful coastline and the view of the Great Belt await. Homes at one with nature All homes are modernly furnished with bright and light materials in a Scandinavian style, where the white surfaces, well-chosen tiles and elegant wooden floors create the framework for the individual rooms. The floors are beautiful oak planks with a matte finish and noise-absorbing soundproofing. At the same time, the square meters are optimally utilized, and you will experience modern floor plans without any wasted space. In all homes, the kitchen-family room is a natural gathering place, from which there is access to a private and sunny outdoor area. The facades' soft-ironed bricks with a play of yellow and greenish nuances evoke memories of forest edges in autumn colors, which are so true to the scenic surroundings. As a fitting counterpart to the facades' authentic and sustainable materials, the houses are equipped with beautiful, green sedum roofs that blend naturally into the area and create a lush carpet on top of the area. The apartments are equipped with ventilation systems that provide heat recovery, and there is underfloor heating in all rooms with individual wireless room thermostats that ensure a well-temperatured and energy-friendly indoor climate. Each home also has built-in humidity sensors that automatically regulate extraction according to need and load. The entrance has sliding doors without interior decoration, and closets have been established in the rooms. However, there is no closet in the bedroom. Shared facilities The residents of the area have access to a large, beautiful community house, where there is plenty of space to celebrate anniversaries with friends and family if space becomes too tight at home. The community house is being built as a 120 square meter orangery in glass and brick, where light can flow in unhindered from all four corners of the world. The area between the homes will have a well-developed path system that meanders between the individual apartment blocks, the community house and the green belt towards the forest and the beach. The mission is to have an easily accessible and safe path system that connects the homes with the surroundings. The area between the homes and the community house will be planted with the aim of creating a green setting for play and community. The common areas also include a well-designed parking area that makes it easy for residents with their own car to park close to the home - while also having an idyllic neighborhood where children can safely move around freely without through traffic.If you want to read the description in its original language that is also possible. Read original description
- Share-friendly
- Balcony/terrasse
- Parking
- Floor plan
- Rent paid in advance: 11,995
- Deposit: 35,985
- Payment on account: Contact owner
- Vacant: 1. January 2026
- Placed:
- Pets allowed
- Case number: 1771264