3 rooms for 11,800 kr. per month

Rent 11,800 DKK
Rental Period Unlimited
Type Apartment
Location Køge
Area 141
Rooms 3 rooms

Ølbycenter, , floor: 2. D..

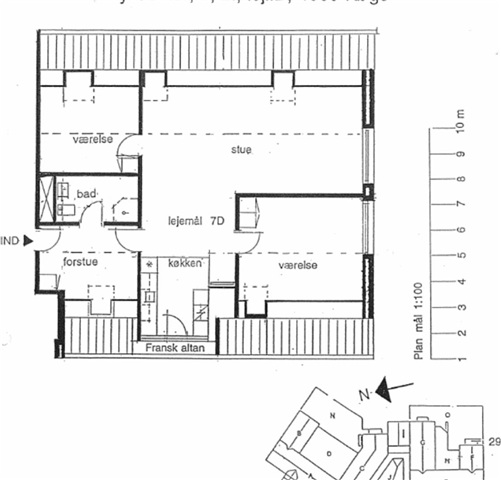
This spacious 141 m² apartment is situated at Ølbycenteret and features two bright bedrooms alongside a large living room that seamlessly connects to an inviting open-plan kitchen area, designed to capture immediate attention.

Residents of the building benefit from access to a sizeable communal rooftop terrace, which serves as a venue for social gatherings including barbecues and summer parties, fostering a friendly community spirit. The location next to Ølbycenteret ensures convenient proximity to the station, restaurants, shops, pharmacy, bakery, and cafés, making daily errands and activities effortless.

Positioned ideally close to Køge city center, the apartment lies just a seven-minute drive from Køge Torv and six minutes from Køge Harbor. Furthermore, Ølby Station is easily accessible, providing a swift 27-minute route to Copenhagen Central Station. This residence offers more than just accommodation; it presents a tranquil and homely environment perfect for unwinding after a busy day.

Step into a lifestyle of comfort and convenience at Ølbycenteret, where this property stands ready to become your private retreat. Don't hesitate to reach out for the opportunity to see how this apartment can be the setting for your next chapter.

  • Rent paid in advance: 11,800
  • Deposit: 35,400
  • Payment on account: 1,058
  • Vacant: 1. March 2026
  • Placed:
  • Pets not allowed
  • Case number: 1766577

Users who have seen this property also saw these: