Apartment on Egedal Centret in Stenløse

Rent 9,800 DKK
Rental Period Unlimited
Type Apartment
Location Stenløse
Area 69
Rooms 2 rooms

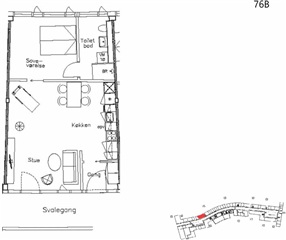
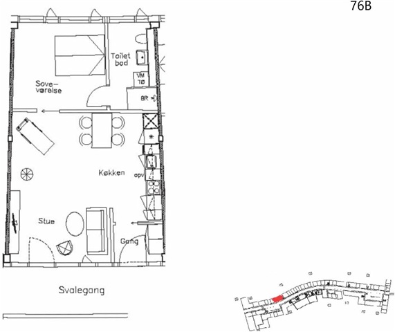
Egedal Centret, , floor: 1..

This residence features a well-designed entrance area equipped with built-in closet space, leading directly into a generously sized kitchen-living room combination. The kitchen itself is outfitted with white cabinetry and offers ample storage. Additionally, there is a comfortable bedroom located on the opposite side, along with a bathroom complete with a shower.

Please be aware that the photographs shown may depict a different apartment, meaning that the layout, view, and location could differ. For the specific floor plan of this dwelling, please refer to the provided drawing.

Situated on the first floor within Egedals Center, all the apartments benefit from convenient access to shopping and daily errands. Free parking is conveniently available on both sides of the center.

The neighborhood affords close proximity to a wide range of amenities, all within walking distance. Egedals Center hosts approximately 70 diverse shops including restaurants, grocery stores, pharmacies, bakeries, and cafés, ensuring everything you need is easily reachable. Furthermore, Stenløse Station is located roughly 200 meters from Egedals Center, providing straightforward connections via the S-train to the city.

  • Rent paid in advance: 9,800
  • Deposit: 29,400
  • Payment on account: Contact owner
  • Vacant: 1. April 2026
  • Placed:
  • Pets not allowed
  • Case number: 1766572

Users who have seen this property also saw these: