Lejlighed på Egeparken i Kokkedal






No English text was provided by the landlord, but we have made this automated translation for you:
Egeparken.
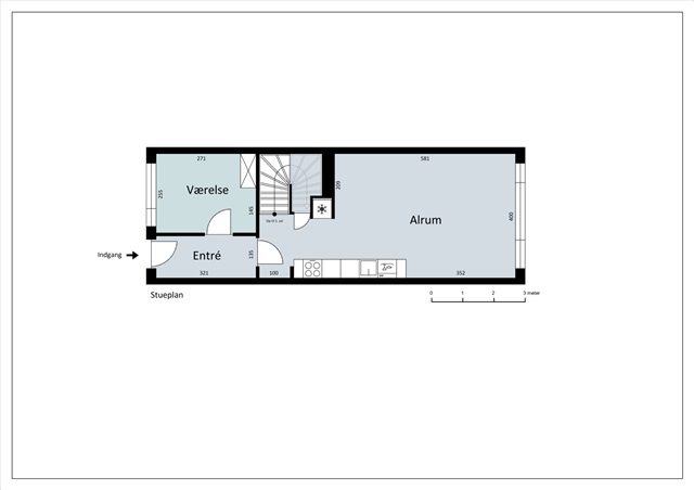
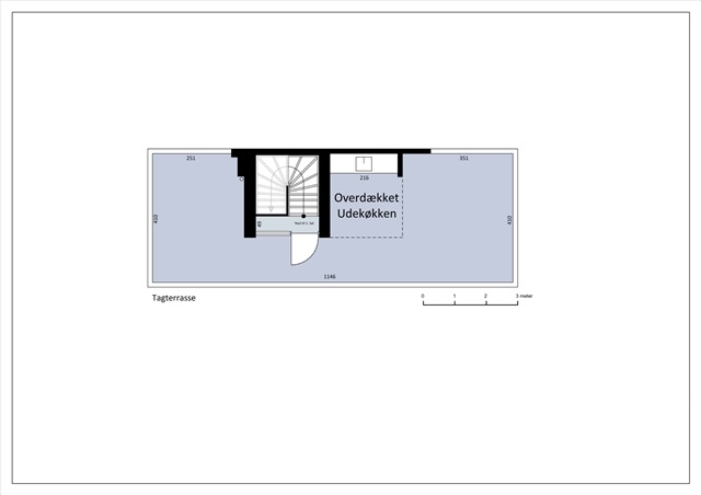
The apartmentThe apartment has a fantastic light from the large windows and offers high quality in all material choices. All our rentals are equipped with white goods and a timeless bathroom with underfloor heating. With its 110 m2, you get 4 rooms spread over 2 levels with a large private roof terrace of 40 m2 and a covered outdoor kitchen.
NB: The pictures do not necessarily show the exact apartment, but are instead pictures from an apartment in the same style and condition. There may be variations in window, balcony/terrace and radiator locations between the homes. In addition, the view may vary if the type of photo is taken from a different location than the apartment in question. Therefore, we always recommend that you go to a viewing so that you are absolutely sure of what you are getting. Contact our rental team if the home interests you.
The property
Egeparken is characterized by its unique southern architecture spread over 18,600 m2 with 6 apartment blocks and a lot of green areas.
Egeparken is established with three different types of apartments to suit all needs. 3-bedroom Atelier apartments with 5-meter ceilings, 3-bedroom apartments with their own garden and 4-bedroom apartments on two levels, with direct access to a private roof terrace with an outdoor kitchen of 40 sqm. The property was completed in 2018, and is 89% owned by the charity organization Humanact.
Nothing is accidental here, you get the perfect setting for a modern family life, where energy-saving solutions meet a functional and timeless design.
Surrounded by a lot of green oases and a play area that invites both relaxation and play. There are a lot of parking spaces for the tenants along the entire property.
The property also includes bicycle parking and a basement room with camera surveillance.
Local area
Egeparken is located within perfect walking distance of various shopping opportunities, schools and institutions. By car you are only 5 minutes from Kokkedal Slot, with its beautiful green areas and beach areas near Rungsted Strandvej. It is also only a 10-minute drive from the center of Hørsholm and 1.1 km from Kokkedal Station, where the Øresund train departs. 190m from Egeparken there are also buses such as 150S, 354 and 365R.
If you want to read the description in its original language that is also possible. Read original description
Energy declaration:
- Rent paid in advance: 14,960
- Deposit: 44,880
- Payment on account: 1,745
- Vacant: 1. January 2026
- Placed:
- Pets allowed
- Case number: 1678041