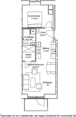
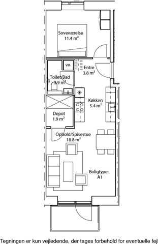
2 room apartment on 64 m2



Youth housing



Duftrankevej, , floor: 3..
Rooms: 2Area m2: 64
Rent. 7,650 kr.
Deposit: 22,950 kr.
Zip code: 5200
City: Odense
Energy declaration:
- Youth housing
- Senior housing
- Balcony/terrasse
- Lift
- Rent paid in advance: 0
- Deposit: 22,950
- Payment on account: Contact owner
- Vacant: 1. November 2025
- Placed:
- Pets allowed
- Case number: 1653663