2 room apartment on 95 m2

Rent 10,950 DKK
Rental Period Unlimited
Type Apartment
Location Hillerød
Area 95
Rooms 2 rooms

Helsingørsgade, , floor: 1..

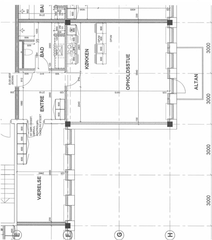
This bright and attractive one-level apartment features its own balcony and is situated in a renovated, modern building located centrally in Hillerød. Upon entering, there is a spacious hallway leading into a tastefully designed bathroom equipped with plumbing ready for a washer and dryer. The open-plan kitchen, dining, and living area offers direct access to the balcony.

Directly behind the property is a large parking garage where residents have the option to rent a parking space. Additionally, permission can be granted to keep pets in the apartment. Positioned on one of the main pedestrian streets in Hillerød, the residence is surrounded by a wide array of shops and dining options, both outdoors along the pedestrian zone and indoors within the Slotsarkaderne shopping center. Just a ten-minute walk away is Hillerød station, providing convenient train services both towards the city and further north. Moreover, the location is close to the picturesque Frederiksborg Castle, along with the adjoining castle lake and garden, making it ideal for enjoying pleasant strolls in these scenic and lush surroundings or visiting the historic castle itself.

  • Balcony/terrasse
  • Lift
  • Rent paid in advance: 10,950
  • Deposit: 32,850
  • Payment on account: Contact owner
  • Vacant: 1. May 2026
  • Placed:
  • Pets allowed
  • Case number: 1602716
Notice: The location of the property on the map above may be approximate. Contact the owner for further information on the location of the property

Users who have seen this property also saw these: