Large 2 bedroom top floor apartment with sunny balcony

Rent 13,900 DKK
Rental Period Unlimited
Type Apartment
Location Hillerød
Area 97
Rooms 3 rooms

Studiestrædet, , floor: 4. tv..

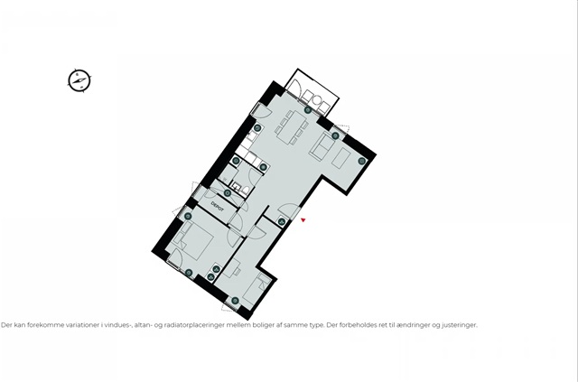
The apartment offers a bright and spacious interior featuring an open kitchen, dining area, and living room. Attention to quality is evident with the matte lacquered ash flooring and a white kitchen from Invita, equipped with the latest household appliances-all Bosch Siemens models rated A+ for energy efficiency. The bathroom is generously sized to accommodate a busy household and includes integrated underfloor heating for added comfort during colder seasons. Additionally, an energy-efficient, built-in Bosch Siemens washer-dryer unit is incorporated within the bathroom. Please note that if precise measurements of the apartment are required, you must bring your own measuring tools to the viewing, as the floor plan does not contain dimension details.

It is important to highlight that the photos provided do not depict the actual apartment but show images from a model unit intended to illustrate the style and choice of materials. For exact layout information, please refer to the floor plan. Should the property be of interest, you are encouraged to reach out to our leasing team or schedule a viewing directly through the listing.

The building known as Carlsbakken was designed by the award-winning architectural firm Holscher Nordberg, resulting in a contemporary structure distinguished by three rounded corners and varying heights. These soft, curved edges impart a unique, organic character to the property. The differing elevations not only contribute to dynamic façades but also maximize natural light in the apartments and courtyard spaces, in addition to providing a sun-exposed communal rooftop terrace. The use of red brick connects to Hillerød's historical architecture and iconic buildings. Carlsbakken is also an energy-efficient, low-energy construction that minimizes environmental impact. The roof is covered with sedum plants, which are both aesthetically pleasing and serve to absorb and delay large quantities of rainwater. The name "Carlsbakken" derives from the sloping terrain around the building, which creates an engaging and varied courtyard area, naturally segmented to accommodate recreational activities and social spaces. Moreover, ground-level bicycle parking is available within the property, accessible without stairs, allowing residents to securely store bicycles or cargo bikes protected from the weather.

Situated in the historic station district at the heart of Hillerød, Carlsbakken places residents close to many amenities. Cars must be parked approximately 100 meters from the building, as the area features car-free streets designed to establish pleasant and safe public spaces with green squares. This location offers excellent proximity to everything, including the train station, enabling travel to Copenhagen in under 40 minutes. Several reputable daycares, elementary schools, high schools, and multiple higher education institutions are within walking distance. A ten-minute bike ride leads either toward SlotsArkaderne, Frederiksborg Castle, and the Castle Lake, or in the opposite direction, into the large Dyrehave Forest. This natural area invites long walks through wild surroundings, offers rich wildlife to observe, and provides opportunities to gather ingredients for homemade elderberry juice or blackberry jam.

Energy declaration:
  • Balcony/terrasse
  • Parking
  • Rent paid in advance: 13,900
  • Deposit: 41,700
  • Payment on account: 950
  • Vacant: 1. July 2026
  • Placed:
  • Might be allowed - ask landlord
  • Case number: 1556784 (Apartment number: 20-9814-1096)