Lys 3-værelseslejlighed i midtbyen

Rent 7,700 DKK
Rental Period Unlimited
Type Apartment
Location Esbjerg
Area 90
Rooms 3 rooms

No English text was provided by the landlord, but we have made this automated translation for you:

Kongensgade, , floor: 1.TV..

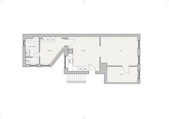
The apartment is under renovation and therefore there are no pictures yet, but you are welcome to book a viewing. This apartment is located on the 1st floor in a quiet and well-functioning property in Esbjerg's pedestrian zone. The apartment is furnished with a large, newer kitchen with white HTH cabinets and all white goods - including. dishwasher. From the kitchen there is a view of the courtyard behind the property. In connection with the kitchen there is plenty of space for a dining table. The bathroom is furnished with a new sink cabinet with mirror, and a shower cubicle. Between the kitchen and bathroom there is a nice room for storage, office, etc. The living room of the apartment is furnished with planed wooden floors, and the same is the case for the bedroom, which is located in the immediate extension of the living room. From both the living room and bedroom there is a view of Kongensgade. The property has a large roof terrace, which is for common use by the residents. New wooden/aluminum windows were installed throughout the apartment in the spring of 2021. PETS ARE NOT ALLOWED IN THE PROPERTY!

If you want to read the description in its original language that is also possible. Read original description

  • Not shareable
  • Rent paid in advance: 7,700
  • Deposit: 23,100
  • Payment on account: Contact owner
  • Vacant: 1. December 2025
  • Placed:
  • Pets not allowed
  • Case number: 1515199

Users who have seen this property also saw these: