Housing is no longer available

Byhus centralt i Korsør

Rent 7,800 DKK
Rental Period Unlimited
Type House
Location Korsør
Area 112
Rooms 3 rooms

No English text was provided by the landlord, but we have made this automated translation for you:

Snukkerupgade.

Town house in Korsør's cosy, old town.
Close to pedestrian street, marina, bathing beach and shopping opportunities.

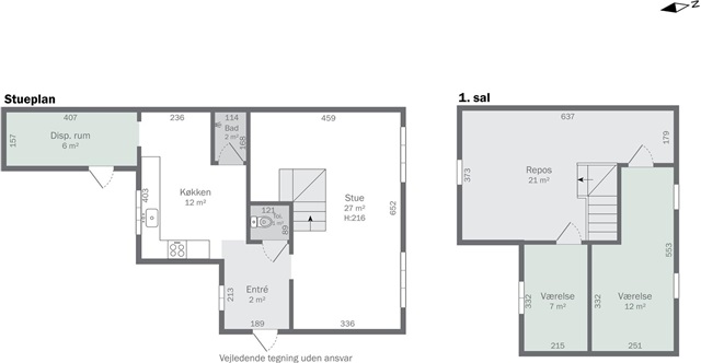
The ground floor contains:
Entrance hall, large bright kitchen with brushed steel appliances (stove, fridge/freezer, dishwasher), living room, utility room with washing machine and dryer, bathroom and toilet.

1st floor: two rooms and a large landing

The property has a private and undisturbed small courtyard.

Heated with cheap district heating.

Rent: DKK 7,800.
Electricity, water and district heating are settled directly with the utility company.

Pets allowed by arrangement.

If you want to read the description in its original language that is also possible. Read original description

Energy declaration:
  • Balcony/terrasse
  • Rent paid in advance: 15,600
  • Deposit: 23,400
  • Payment on account: Contact owner
  • Vacant: Immediately
  • Placed:
  • Contact landlord
  • Case number: 1490842

Users who have seen this property also saw these: